5 locali in vendita

Monza, Via Fidia - Monza Est
€ 395.000
5 locali 5 locali
158 Mq 158 Mq
2 bagni 2 bagni

5 locali in vendita

Monza, Via Fidia - Monza Est

Descrizione annuncio

Monza, zona Monza Est. Proponiamo in contesto riservato e tranquillo un ampio e luminoso 5 locali di generosa metratura, con spazi ben distribuiti, disposto su due livelli.

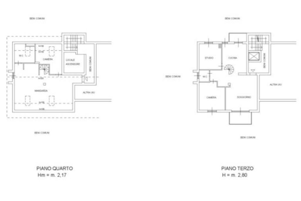
L'immobile si sviluppa su una superficie di 158 mq, distribuiti tra il terzo e il quarto piano di una palazzina degli anni '80 servita da ascensore. Il contesto condominiale in cui si trova è curato, con ampie zone verdi.

Al terzo piano si accede alla zona giorno, dove troviamo un ampio soggiorno luminoso, arricchito da grandi vetrate che danno accesso ad un terrazzo abitabile. Questo spazio esterno è ideale per godersi momenti di relax all'aria aperta. Sempre su questo livello si trovano una spaziosa cucina con balcone di servizio, una camera, un bagno finestrato con doccia e antibagno.

Una scala interna conduce al piano mansardato interamente ABITABILE, caratterizzato da tre camere, cabina armadio ed un grande bagno finestrato dove sono presenti una vasca idromassaggio ed una comoda doccia. Questo livello abitativo è dotato altresì di una porta indipendente che consente l’accesso anche dal vano scala.

L'immobile, fornito di riscaldamento autonomo, è stato oggetto di ristrutturazione completa nel corso degli ultimi anni, tra cui la caldaia a condensazione sostituita un anno fa e il bagno al piano mansardato rifatto nella primavera 2025. Questa soluzione abitativa presenta ottime finiture quali velux dotate di sensori per pioggia e oscuranti, porte Rimadesio, parquet presente in tutti gli ambienti, impianto di aria condizionata che serve entrambi i piani, impianto anti-intrusione perimetrale e volumetrico.

A completare la proprietà c’è una cantina ed è disponibile un ampio box doppio al prezzo di euro 33.000, una vera comodità per chi possiede più di un'auto o necessita di spazio per moto, biciclette o per uso deposito.

La zona dov’è ubicato l’immobile si trova in posizione strategica rispetto al centro della città e alle principali arterie stradali ed è ben servita da ogni tipo di attività commerciale, scuole, mezzi pubblici e ospedale Policlinico di Monza.

E’ davvero un’ottima soluzione per chi è alla ricerca di locali ampi e ben distribuiti, dotati di ogni comfort e desidera vivere in un ambiente residenziale e tranquillo, nelle immediate vicinanze di parchi e aree verdi.

Mostra tutto

Nelle vicinanze

Trasporto pubblico Trasporto pubblico
Monza
Monza
2,2 Km
Villasanta
Villasanta
2,3 Km
Trasporto pubblico
80 m
Monza Sicilia Usuelli
Monza Sicilia Usuelli
270 m
Monza Sobborghi
Monza Sobborghi
1,3 Km
Ricariche auto elettriche Ricariche auto elettriche
Iper Monza
960 m
Eurospin Monza Stucchi
1,1 Km
Concessionario Nissan Renord
1,1 Km
Eneldrive Esselunga Monza
1,4 Km
ALDI Concorezzo
2,3 Km
Scuole Scuole
Scuola Primaria Alessandro Anzani
270 m
Scuola Primaria Iqbal Masih
470 m
Liceo Statale Carlo Porta
540 m
Scuola Secondaria di primo grado Giovanni Pascoli
550 m
Scuola d'Infanzia Cuore Immacolato di Maria
950 m
Farmacia Farmacia
Farmacia Comunale n° 6
430 m
Farmacia Cederna
450 m
Farmacia Comunale n. 3
850 m
Farmacia Comunale n. 9
850 m
Iper Farma
980 m
Ospedali Ospedali
Policlinico di Monza
440 m
Istituti Clinici Zucchi
2,3 Km
Supermercati Supermercati
IN's Mercato
530 m
U2
570 m
CRAI
650 m
Lidl
940 m
Iper
950 m
Negozi Negozi
Gastronomia Arosio
210 m
Negozi
450 m
Le Golosità del Fornaio
650 m
Mario Baldrighi
780 m
Bazar Exchange
790 m
Bar Bar
Tony e Dany
130 m
Fantasy Dance Line
440 m
Movida Monza
460 m
ModY's Bar
720 m
Qualunquemente
1,3 Km
Ristoranti Ristoranti
Osteria La Lira
680 m
Yami Sushi
810 m
Da Serafino al Mattino
840 m
Ristorante Da Guerino
840 m
Joe Scarpetta
850 m
Mostra tutto

Caratteristiche

Rif.:
61132203
Piano:
3 di 4 con ascensore (Piano su più livelli)
Box:
1
Balconi:
1
Terrazzi:
1
Camere da letto:
4
Mostra tutto
Prezzo Prezzo
€ 395.000
Prezzo box Prezzo box
€ 33.000
Rata mutuo Rata mutuo
€ 1.821 / mese
Spese annue Spese annue
€ 2.500
Proponi il tuo prezzoProponi il tuo prezzo

Classe Energetica

E
E
E
E
E
E
E
E
E
EP globale non rinnovabile:
1958.35 kW h/m² anno
EP globale rinnovabile:
2.99 kW h/m² anno
EP invernale del fabbricato:
EP estiva del fabbricato:
Anno di costruzione:
1985
Riscaldamento:
Autonomo
Tipo impianto:
A radiatori
Tipo alimentazione:
Metano

Ti interessa visionare l'immobile?

Fissa un appuntamento  Fissa un appuntamento

Richiedi informazioni

* Questi campi sono obbligatori

Calcola il tuo mutuo

Semplice e senza impegno
Anticipo

( % )
Mutuo

( % )

pochi semplici passi

inserisci i tuoi dati
Questionario completato
Grazie per aver richiesto un appuntamento senza impegno con un nostro Consulente del Credito e Assicurativo.

Hai inserito correttamente tutti i dati necessari e a breve riceverai una e-mail con un link da convalidare per inviare i tuoi dati.
Affiliato
Monza Immobiliare Sas
Via Carlo Rota, 25 20900 Monza (MB)

Il nostro staff


  • Gianni Matera
    Affiliato

  • Gaia Maria Adamo
    Coordinatrice

  • Elvira Mancusi
    Coordinatrice

  • Mattia Varisco
    Collaboratore
Via Carlo Rota, 25 20900 Monza (MB)
Zona: Monza Est
Mostra su mappa
Orari: dal lunedì al venerdì: 9.00 - 12.30 / 14.30 - 19:30 ; sabato: 9.00 - 12.30
Affiliato
Monza Immobiliare Sas
Via Carlo Rota, 25 20900 Monza (MB)

2025 Tecnocasa Franchising S.p.A. - P. IVA 08365160152 - Via Monte Bianco 60/A 20089 Rozzano (MI). Ogni agenzia ha un proprio titolare ed è autonoma. Privacy policy | Policy utilizzo | Cookie policy