Ufficio in vendita

Monza, Via Boito - Parco
€ 237.000
Prezzo aggiornato
135 Mq 135 Mq
2 bagni 2 bagni

Ufficio in vendita

Monza, Via Boito - Parco

Descrizione annuncio

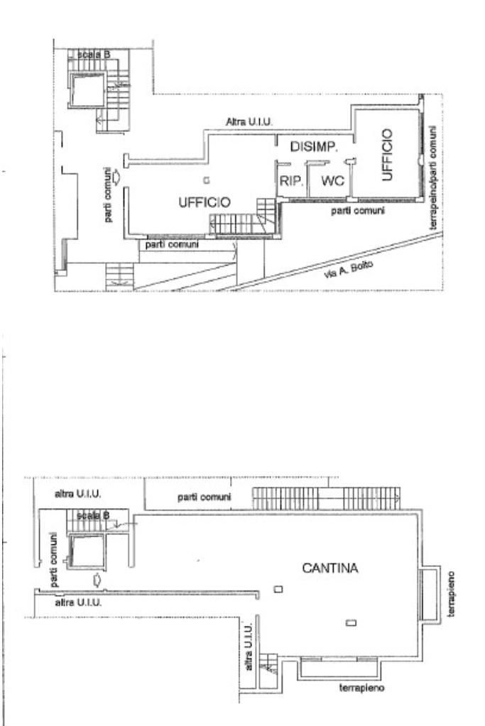
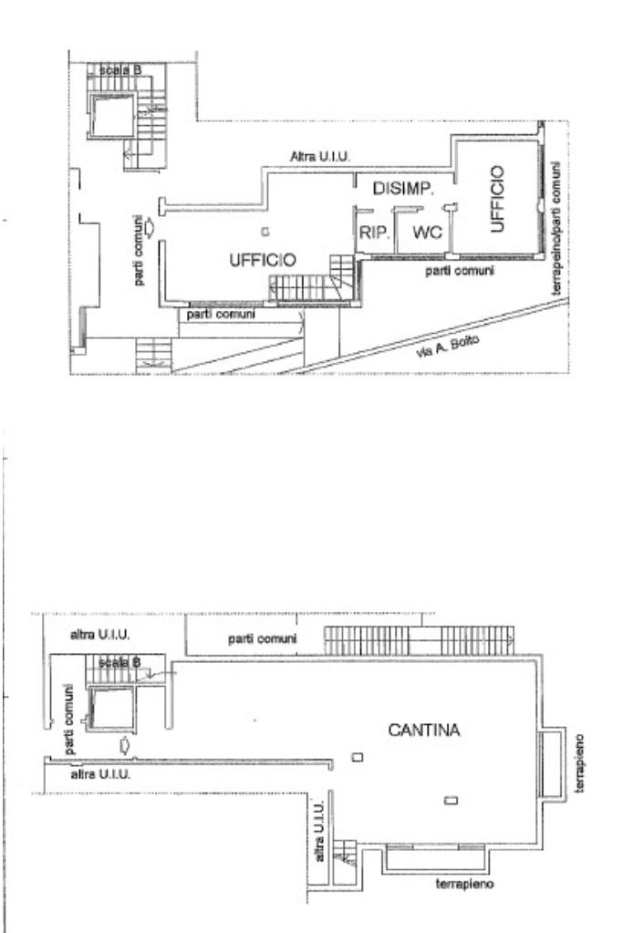
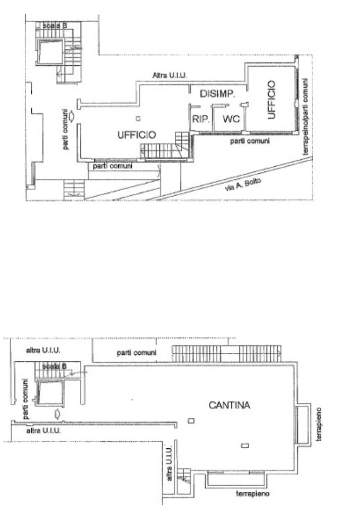
Zona Musicisti - Elegante ufficio ristrutturato su due livelli.

In una delle aree più richieste e prestigiose di Monza, ben servita di tutti i servizi di prima necessità, proponiamo ufficio completamente ristrutturato, disposto su due livelli e caratterizzato da ambienti moderni, funzionali e curati nei dettagli.

L’immobile, dotato di impianto di climatizzazione che garantisce comfort in ogni stagione, offre spazi luminosi e versatili, ideali per studi professionali, attività direzionali o realtà che necessitano di un contesto rappresentativo.

La distribuzione interna permette una gestione ottimale delle postazioni di lavoro, con sale operative, area reception e zone meeting, doppi servizi posti uno al piano terra ed uno al piano seminterrato e angolo cucina/snack.

A completare la proprietà, un box triplo di ben 56 mq, raro nella zona, perfetto per ospitare più veicoli, come deposito o come spazio di servizio aggiuntivo. Inoltre c’è la possibilità di parcheggio antistante, rendendo l’accessibilità un vero punto di forza.

E’ possibile il cambio di destinazione d’uso, rendendo l’immobile ideale anche per chi cerca una soluzione residenziale.

Mostra tutto

Nelle vicinanze

Trasporto pubblico Trasporto pubblico
Monza
Monza
2,2 Km
Lissone-Muggiò
Lissone-Muggiò
2,3 Km
Via Boito - Via Beethoven (Cazzaniga)
Via Boito - Via Beethoven (Cazzaniga)
50 m
Via Boito - Via della Birona (Cazzaniga)
Via Boito - Via della Birona (Cazzaniga)
130 m
Monza Sobborghi
Monza Sobborghi
2,4 Km
Ricariche auto elettriche Ricariche auto elettriche
Sporting Club Monza
1,0 Km
Lidl Lissone
1,2 Km
U2 Supermercato Monza Via Marsala | ENELX
2,2 Km
Penny Market
3,0 Km
Scuole Scuole
Scuola Primaria Bachelet
240 m
Scuola Secondaria di Primo Grado Elisa Sala
300 m
Scuola Primaria Salvo D'Acquisto
380 m
Collegio Villoresi San Giuseppe
640 m
Scuola Primaria Alessandro Volta
930 m
Farmacia Farmacia
Farmacia Comunale n. 2
120 m
Farmacia Zecca
560 m
Comunale n. 10
790 m
Farmacia Rondò
1,0 Km
Farmacia Moretti
1,1 Km
Ospedali Ospedali
Ospedale San Gerardo
800 m
Istituti Clinici Zucchi
1,4 Km
Centro Medico
2,9 Km
Supermercati Supermercati
Carrefour Market
170 m
Iper
580 m
Sigma
870 m
Bennet
960 m
Lidl
1,1 Km
Negozi Negozi
Le Golosità del Forno
540 m
NaturaSì
570 m
Il Regno del Pane
690 m
Carrefour Express
690 m
Baby Stockeria
820 m
Bar Bar
Wine Bar San Biagio
890 m
Goodfellas
1,1 Km
Velvet
1,2 Km
zero3nove
1,4 Km
Bar
1,4 Km
Ristoranti Ristoranti
O'Vesuvio
290 m
Rosso Pomodoro
450 m
Il Giardino di Giada
460 m
La Villetta
520 m
La Pergola
550 m
Mostra tutto

Caratteristiche

Rif.:
61154137
Piano:
Su più livelli di 3 con ascensore
Totale piani:
3
Box:
1
Condizionamento:
Autonomo
Ascensore:
Mostra tutto
Prezzo Prezzo
€ 237.000
Rata mutuo Rata mutuo
€ 1.107 / mese
Spese annue Spese annue
€ 4.300
Proponi il tuo prezzoProponi il tuo prezzo

Classe Energetica

D
D
D
D
D
D
D
D
D
EP globale non rinnovabile:
271.94 kW h/m² anno
EP globale rinnovabile:
15.91 kW h/m² anno
EP invernale del fabbricato:
EP estiva del fabbricato:
Anno di costruzione:
2008
Riscaldamento:
Centralizzato
Tipo impianto:
A pavimento
Tipo alimentazione:
Metano

Prezzo ridotto di €1 (1%%)

Ti interessa visionare l'immobile?

Fissa un appuntamento  Fissa un appuntamento

Richiedi informazioni

Clicca su Leggi per aprire l'informativa
* Questi campi sono obbligatori

Calcola il tuo mutuo

Semplice e senza impegno
Anticipo

( % )
Mutuo

( % )

pochi semplici passi

inserisci i tuoi dati
Questionario completato
Grazie per aver richiesto un appuntamento senza impegno con un nostro Consulente del Credito e Assicurativo.

Hai inserito correttamente tutti i dati necessari e a breve riceverai una e-mail con un link da convalidare per inviare i tuoi dati.
Affiliato
Monza Immobiliare Sas
Via Carlo Rota, 25 20900 Monza (MB)

Il nostro staff


  • Gianni Matera
    Affiliato

  • Gaia Maria Adamo
    Coordinatrice

  • Elvira Mancusi
    Coordinatrice

  • Mattia Varisco
    Collaboratore
Via Carlo Rota, 25 20900 Monza (MB)
Zona: Monza Est
Mostra su mappa
Orari: dal lunedì al venerdì: 9.00 - 12.30 / 14.30 - 19:30 ; sabato: 9.00 - 12.30
Affiliato
Monza Immobiliare Sas
Via Carlo Rota, 25 20900 Monza (MB)

2026 Tecnocasa Franchising S.p.A. - P. IVA 08365160152 - Via Monte Bianco 60/A 20089 Rozzano (MI). Ogni agenzia ha un proprio titolare ed è autonoma. Privacy policy | Policy utilizzo | Cookie policy